Training Facility For Adults With Autism
Project Brief: This proposal is for a training facility for adults with autism. The patients are trained in arts,crafts,life skills and other activities, under constant supervision from the facilitators.This is a single storeyed concrete structure with large spans of cool blue and green glass.
Style: Modern
Year of design: 2023
Role: Concept and design
Place: Chicago, USA


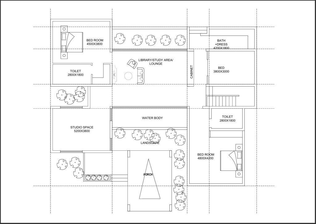
Villa - Thampi
Project Brief: This is a 5-bed villa proposed for a client in Mannar, India, in contemporary style.
Role: Design
Place: Kerala, India


